JHJ(JSJ)-20交流斷電延時繼電器使用方法及接線圖-上海上繼科技有限公司
發表時間:2019-07-18 16:37 瀏覽次數:1282 〖返回〗
一、JHS(JSJ)-20交流斷電延時繼電器工作原理
繼電器的原理框圖如圖1所示。由圖可見,繼電器有晶體振蕩器、分頻器、整定開關、驅動電路和電源回路等組成。當繼電器施加額定電壓時,繼電器內部瞬動繼電器和兩個延時繼電器瞬時動作,觸點切換,并使電源回路與計時回路處于失電狀態,以提高繼電器抗干流性能。當輸入電壓大大降低或完全消失時,瞬動繼電器瞬時返回(兩個延時執行繼電器仍處于動作狀態) ,觸點也瞬時返回,使儲能電源接通計時回路,晶體振蕩產生時鐘脈沖,經分頻后得到10ms計時脈沖,計數器對計時脈沖計數,當所計脈沖數與整定開關值符合時,驅動執行繼電器返回,完成斷電后延時返回的功能。

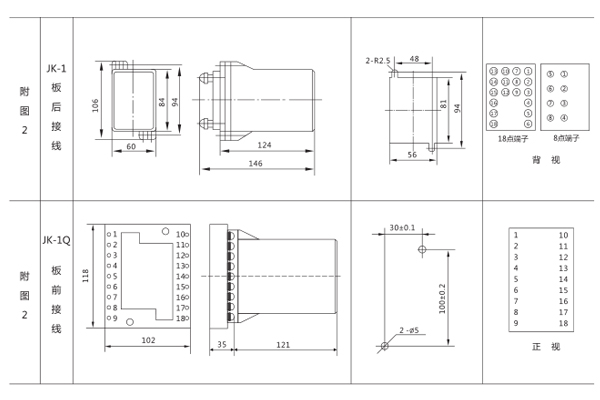
二、JHS(JSJ)-20交流斷電延時繼電器背后接線圖

三、JHS(JSJ)-20交流斷電延時繼電器外形及開孔尺寸

四、JHS(JSJ)-20交流斷電延時繼電器主要參數
1.額定電壓:交流380、220、110、100V。
2.額定頻率: 50HZ或60HZ。
3.保證繼電器觸點可靠通電動作所需電壓不大于80%額定電壓。(充電1秒以上)
4.保證繼電器可靠斷電返回的電壓不小于10%額定電壓。 (斷電燈滅)
5.在額定電壓下繼電器斷電延時返回的延時誤差, 在整定范圍內不超過0.1%整定值+10ms。
6.在額定電壓下繼電器斷電延時的變差不超過0.1%額定值+10ms。變差.是指旨繼電器在同一時間整定點上測量五次,實測時間的**值與最小值之差。
7.二付延時返回的觸點可各自獨立整定,時間整定范圍均為0.02-9.99s,而延時整定值可以不同或相同。
8在額定電壓下繼電器消耗的功率不大于4VA。
9.繼電器允許長期承受110%額定電壓。
10.繼電器在電壓不大于250V、電流;不大于1A(時間常數T=5±0.75ms直流有感電路中) ,觸點斷開容量為30W ,在電壓不大于250V,電流不大于1A,功率因素COS(p = 0.4±0.1的交流電路中.觸點斷開容量為150VA。
11.繼電器各電路與外露的非帶電金屬部分之間應能乘受有效值2kV,輸入電路和觸點之間應能承受1kV, 50HZ交流電壓 ,歷時1min實驗,應形能擊穿或閃絡現象。
12.繼電器能在-10 °C- 40 °C溫度范圍內可靠工作。
13.繼電器機械壽命105次.壽命104次。
五、JHS(JSJ)-20交流斷電延時繼電器使用方法
繼電器面板圖如圖2所示,圖中上部三位數字開關整定執行繼電器K1的延時返回時間t1 ,下部三位數字開關整定執行繼電器K2的延時返回時間t2 ,開關的三位數字乘以0.01S即為時間整定值。例如三數字管數為580,則時間整定值=580x0.01S=5.8S。 t1和t2的整定數值可以相等,也可以不相等。
六、JHS(JSJ)-20交流斷電延時繼電器用途
JHS(JSJ)-20靜態交流斷電延時繼電器用于交流操作的繼電保護和自動化電路中 , 作為交流瞬時動作斷電后延時返回的時間元件。 JHS-20繼電器完全可取代DSJ-20系列電磁型時間繼電器。
上海上繼科技有限公司(專注延時繼電器生產廠家)銷售熱線:021-57233089 QQ:1932551438
(以上內容僅供參考,上海上繼科技有限公司有最終解釋權}
更多繼電器精彩文章→DY-32/60C電壓繼電器安裝尺寸及接線圖





